90平米小三居户型的演变与创新
扫描到手机,新闻随时看
扫一扫,用手机看文章
更加方便分享给朋友
面向刚需客户的90平米左右的小三居户型一直都是市场上的主流产品,形成此种结果的原因,除了各类房地产调控政策的引导之外,产品本身功能的完整性及很好的客户兼容性也是重要的因素。本文从经典的户型设计出发,抓住卫生间这一主要矛盾,逐层深入,层层递进的探讨这一经典户型的创新方向。
一、90平米的小三居受欢迎的原因
1、适用客户类型广泛

2、税收优惠
财政部发布《关于调整房地产交易环节契税、营业税优惠政策的通知20160217》:二套房契税90平米以下由3%降至1%(二线城市),同时一套房契税90平米以下仍保持1%(一、二线城市)。

3、各地有重拾"90/70"政策的趋势
上海市政府印发《关于进一步优化本市土地和住房供应结构的实施意见的通知》:中心城区中小套型比例不低于70%,郊区不低于60%,轨道交通站点周边区域中小套型比例不低于80%。

其他多地在供地条件中也有明确要求要加大90平米一下户型的供应比例。
4、经典的户型设计
如下图所示的户型一度成为经典,广泛应用于11层以下的设计中,它的优点是设计功能完备,南北通透,经济紧凑,得房率高,很好的契合了刚需客户对“功能房间多”的使用需求。随着容积率的提高,其应用推广受到了一定限制。

5、卫生间是痛点
通过客户使用场景分析,明显看出卫生间在早晚两个时段使用集中,在各功能空间中使用频率较高,因此在紧凑户型的设计当中应当着重卫生间功能排布。

二、从卫生间使用功能设计来看户型优化
1、求索一:一个标准三件套卫生间如何缓解使用压力?

应用1:洗衣与盥洗互换,可实现干湿分离。虽然功能没有增加,但是扩大同时使用人数,缓解了卫生间使用高峰时段的相互干扰。

2、求索二:如何消除马桶的使用对其他功能使用的影响?
将马桶间独立设置,配置一个小洗手盆,可以实现如厕功能的完全独立。减小了使用功能的交叉,初步缓解了卫生间的使用压力。


应用2:借鉴“万科金域东郡”项目在经典紧凑型三居户型上设计,将如厕空间独立,避免功能交叉带来使用的干扰,从而缓解了高峰时段的使用压力。

3、求索三:一个半卫生间概念的提出
保留原有卫生间的三件套使用功能,同时将马桶间独立设置,实现两个完全独立的使用空间。这种“一个半卫生间”的方式,进一步缓解了卫生间的使用压力。


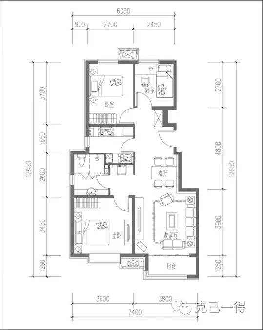
应用3:在紧凑型三居户型基础上,设计出“一个半卫生间”创新产品90-3A户型

4、求索四:一个半卫生间相邻布置,不利于各房间使用者的便捷可达,是否能将半个卫生间移至靠近次卧的位置?
通过调整卫生间相邻功能空间(厨房)的布局,实现了将半个卫生间移到靠近次卧室的位置,为两个次卧的居住者提供便捷,同时将主卫纳入主卧,形成套房。


应用4:将“一个半卫生间”的两个卫生间分离排布,同时形成主卧套房。

5、求索五:“得寸进尺”,能否进一步将一个半卫生间优化升级为两个完整的卫生间?
将靠近次卧的半个卫生间优化成为一个干湿分离的三件套卫生间,两个完整的卫生间已经完全可以满足三居室居住者各成长周期的使用需求。


应用5:在90-3A+户型基础,次卫升级为干湿分离三件套,打造出两个完整卫生间。

【小结】通过对小尺度空间的设计整合,将90㎡紧凑三居逐步升级为“2卫+主卧套”的创新产品,达到提高刚需产品居住舒适度的目的。

三、将适用范围扩展到18层
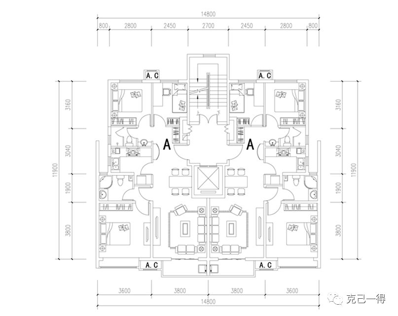
《住宅设计规范 GB50096-2011》中规定:十二层及十二层以上的住宅,每栋楼设置电梯不应少于两台。“90平米三居两卫”产品若应用于十二层以上住宅,将会导致配置超标、得房率降低等不利影响,因此此类产品通常用于十一层及以下住宅。


求索六:刚需产品的18层住宅是否也可以实现一单元两户?
由于18层住宅每单元需要设置两部电梯,为实现类似11层住宅的一单元两户入户关系,可以采取如下方案:保持11层住宅的单元平面,两个单元拼接后在第14层设置连廊或联系平台,达到借用电梯的目的。

应用6-1:通过在14层设置室外连廊的方式,保持一单元两户的前提下,产品从11层可增至18层,得房率不变。

应用6-2:通过在14层设置室外平台的方式,保持一单元两户的前提下,产品从11层可增至18层,得房率会略有降低。

四、建筑面宽条件充足情况的户型设计升级探讨
求索7:土地资源充足的情况下,90㎡三居户型如何优化?
增加南向面宽及开间数量。起居室和两个卧室均实现朝南采光。
合理布局核心筒,实现模拟独立入户,打造小公馆产品。
应用7-1:90㎡三居“小公馆”轻奢户型

应用7-1:90㎡三居“成长型”户型设计



声明:本文由入驻焦点开放平台的作者撰写,除焦点官方账号外,观点仅代表作者本人,不代表焦点立场。
